Appartement vue mer terrasse parking Bormes La Favière
T2 à vendre Marina du Port de Bormes La Favière
Port de Bormes les Mimosas appartement vue mer et plage
Séjour appartement T2 à acheter au Port de Bormes
VENDU  APPARTEMENT VUE MER 2 PIECES TERRASSE ET PARKING PORT DE BORMES LA FAVIERE
VENDU  APPARTEMENT VUE MER 2 PIECES TERRASSE ET PARKING PORT DE BORMES LA FAVIERE
VENDU  APPARTEMENT VUE MER 2 PIECES TERRASSE ET PARKING PORT DE BORMES LA FAVIERE
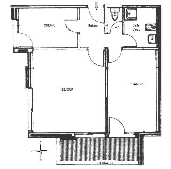
Plan d'un appartement 2 pièces à acheter ches ISTA SUD immobilier
Vendu

VENDU APPARTEMENT VUE MER 2 PIECES TERRASSE ET PARKING PORT DE BORMES LA FAVIERE

space_dashboard Référence V-395

Sur le Port de Bormes La Favière, "Le village de la mer", cet appartement 2 pièces de 47m² est situé au 3eme étage, en angle, exposé Sud et Ouest. Composé d'une entrée, un séjour ouvrant à l'Ouest côté plage de la Favière et au Sud sur une terrasse ensoleillée de 7m² surplombant les bateaux, la mer, le Cap Bénat et l'île de Port-Cros , une cuisine séparée, équipée, une chambre climatisée ouvrant sur la terrasse, une salle d'eau et wc séparés. Nombreux placards.

Idéalement situé, proche des commerces de la Favière, de la plage et de toutes les activités nautiques et estivales.

Une superbe piscine sur la mer. Gardien et hommes de services présents toute l'année

Une place de parking privée protégée par barrière au pied de l'immeuble, comprise dans le prix. 

ISTA SUD, agence et copropriétaire au Port de Bormes vous accompagne tout au long de votre projet.

Surface habitable 47m²
Nombre chambres 1
Nombre salles de bain/d'eau 1
Année de construction 1977
Copropriété oui
Nombre de lots de la copropriété 163
Étage 3
Ascenseur oui
Extérieur Terrasse
Piscine résidence
Chauffage climatisation réversible
Charges courantes annuelles 1500
Nous contacter
Les champs indiqués par un astérisque (*) sont obligatoires
12 ans d'accompagnement et de savoir-faire
12 ans d'accompagnement et de savoir-faire
Expertise du marché
Expertise du marché
Estimation offerte
Estimation offerte
Votre bien en multidiffusion
Votre bien en multidiffusion
Satisfaction clients
Satisfaction clients
Le Port de Bormes la nuit