Estimer un appartement sur le Port de Bormes par l'agence ISTA SUD située sur le quai d'Honneur
L'agence du Port de Bormes vend les appartements des copropriétés la Formigue l'Esquillette et le Cap Blanc
APPARTEMENT 4 PIECES 100m² - TERRASSE 90m² - CAVE - PARKING - MARINA PORT BORMES LA FAVIERE
APPARTEMENT 4 PIECES 100m² - TERRASSE 90m² - CAVE - PARKING - MARINA PORT BORMES LA FAVIERE
APPARTEMENT 4 PIECES 100m² - TERRASSE 90m² - CAVE - PARKING - MARINA PORT BORMES LA FAVIERE
APPARTEMENT 4 PIECES 100m² - TERRASSE 90m² - CAVE - PARKING - MARINA PORT BORMES LA FAVIERE
APPARTEMENT 4 PIECES 100m² - TERRASSE 90m² - CAVE - PARKING - MARINA PORT BORMES LA FAVIERE
APPARTEMENT 4 PIECES 100m² - TERRASSE 90m² - CAVE - PARKING - MARINA PORT BORMES LA FAVIERE
APPARTEMENT 4 PIECES 100m² - TERRASSE 90m² - CAVE - PARKING - MARINA PORT BORMES LA FAVIERE
APPARTEMENT 4 PIECES 100m² - TERRASSE 90m² - CAVE - PARKING - MARINA PORT BORMES LA FAVIERE
Appartement vendu par ISTA SUD l'agence du Port de Bormes La Favière
APPARTEMENT 4 PIECES 100m² - TERRASSE 90m² - CAVE - PARKING - MARINA PORT BORMES LA FAVIERE
Vendu

APPARTEMENT 4 PIECES 100m² - TERRASSE 90m² - CAVE - PARKING - MARINA PORT BORMES LA FAVIERE

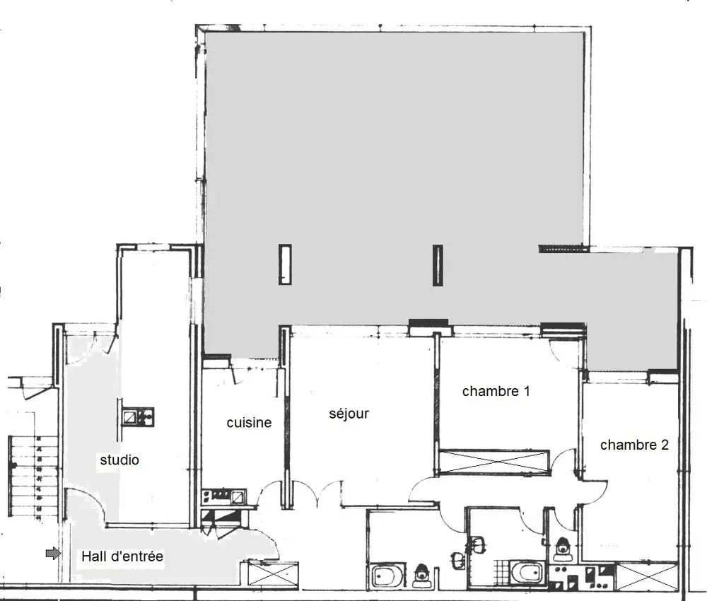
Vendu récemment dans la Marina du Port de Bormes La Favière, au 1er étage, cet appartement est composé d’une entrée, un séjour ouvrant par baies vitrées sur l’immense terrasse au Sud, une partie couverte pour en profiter toute l’année, une cuisine séparée, 2 belles chambres ouvrant sur la terrasse + une grande chambre avec entrée indépendante (ou studio) donnant sur la grande terrasse, 2 salles d’eau et wc séparés. Climatisation réversible.
Rafraichissement à prévoir. Une grande cave de plain-pied. Une place de parking privée.
La résidence du Port de Bormes est surveillée, gardien toute l’année. Une magnifique piscine coté mer et îles

Surface habitable : 100 m² (92m² carrez + 8m²)
Nombre de pièces : 4 (dont 1 studio)
Nombre de chambres : 3 (dont un studio)
Terrasses : 90m² Sud, une partie couverte.
Annexe : Cave et parking privé.
Divers : Gardien - piscine résidence

Nous contacter
Les champs indiqués par un astérisque (*) sont obligatoires
Découvrez
Aussi...
Appartement Port de Bormes les Mimosas
Nouveau Coup de cœur

APPARTEMENT 4 PIECES AVEC TERRASSES ET DOUBLE GARAGE SUR LE PORT DE BORMES LA FAVIERE

maps_home_work Type de biens Appartement T4
place Ville BORMES LES MIMOSAS LA FAVIERE
space_dashboard Nombre de pièces 4
Exceptionnel 4 pièces de 90 m² rénové à neuf au dernier étage du Port de Bormes. Ce bien traversant offre une vue mer panoramique, trois terrasses, une suite parentale et des prestations haut de gamme avec triple garage et piscine.
En savoir plus
Maison terrasse piscine Les Hauts de Cardenon
Exclusivité Sous offre acceptée

VILLA EN VENTE A BORMES LES MIMOSAS CARDENON PROCHE LA FAVIERE AU CALME PISCINE GARAGE PARKING

maps_home_work Type de biens Maison villa
place Ville Bormes les Mimosas
space_dashboard Nombre de pièces 6
Nichée au calme à Bormes La Favière, cette villa de 5 chambres présentée par ISTASUD immobilier offre une vue dégagée sur le port. Profitez d'un séjour de 54 m², d'une piscine au sel et d'un vaste garage, le tout à pied des plages.
En savoir plus
12 ans d'accompagnement et de savoir-faire
12 ans d'accompagnement et de savoir-faire
Expertise du marché
Expertise du marché
Estimation offerte
Estimation offerte
Votre bien en multidiffusion
Votre bien en multidiffusion
Satisfaction clients
Satisfaction clients
Le Port de Bormes la nuit